Mario Affeldt
Nassauische Str. 31
10717 Berlin
Tel. 0 30 - 41 99 85 70
Fax. 0 30 - 41 99 85 71

CAD-Service •
Vermessung •
Techn. Zeichnungen •

Exposé-Erstellung

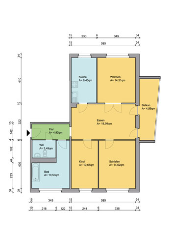
Beispiel

Grundriss mit farbigen Schraffuren gemäß Flächennutzung.

Home
Kontakt
Service